Feb 02 , 2026

A coil fed laser cutting machine is the ideal solution for manufacturers seeking higher efficiency, continuous production, and lower material cost in modern sheet metal processing.
Compared with traditional sheet cutting, a coil sheet metal laser cutting machine enables automatic feeding from metal coils, reducing manual handling, minimizing material waste, and significantly improving productivity.
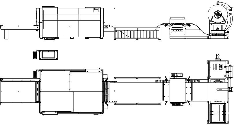
The complete working process of a coil sheet laser cutting machine includes:
Loading trolley
De-coiler
Levelling unit
Fiber laser cutting unit
Transportation table
Manual unloading
This fully integrated workflow makes the coil fed laser cutting machine a key solution for high-volume, flexible, and automated sheet metal cutting lines.
The loading trolley is designed to transport metal coils safely and efficiently to the decoiler.
Advantages:
Maximum loading capacity up to 15 tons, suitable for heavy metal coils
Hydraulic motor driving system ensures smooth movement
Hydraulic cylinder lifting system aligns the coil precisely with the decoiler main shaft
Reduces labor intensity and improves loading efficiency
Enhances safety for coil sheet metal laser cutting machine operations
The decoiler is a critical unit for any coil laser cutting machine, directly affecting feeding stability and cutting accuracy.
Structural Advantages:
Main frame made of square tubes, Q235 steel plates, and 45# steel
Fully stress-relieved by annealing to prevent deformation
Front and rear bearing holes bored in one process to ensure spindle concentricity and zero radial runout
Key Components:
Spindle: Made of 45# seamless steel pipe, quenched and tempered for high strength
Hydraulic expansion system: Connecting-rod type push-pull expansion drum
Pressing device: Polyurethane-coated pressing wheel, cylinder-controlled support arm
Material supporting system: Support arms and rolling cylinders driven by servo motor and reducer
Thickness & Power Matching:
Standard coil thickness: 1–3mm, suitable for 3000W coil sheet laser cutting machine
Heavy-duty applications: 3–6mm coil thickness, supported by reinforced decoiler design
Recommended laser power: 6000W or 12000W fiber laser, ideal for thick coil sheet metal cutting
This makes the system highly adaptable for different coil fed laser cutting machine applications.

To ensure flat and stress-free sheet feeding, the leveling unit plays a vital role in the coil sheet metal laser cutting machine.
Technical Advantages:
17 leveling rollers (8 upper + 9 lower) for superior flatness control
Rollers driven by servo motor and precision gearbox
Roller material: alloy steel with quenching, tempering, high-frequency hardening, and hard chrome plating
Planar correction accuracy: ≤ 1.5mm/㎡
This ensures excellent sheet flatness before entering the fiber laser cutting area, greatly improving cutting quality and consistency.

The laser cutting unit is specially designed for continuous coil feeding and high-speed processing.
Advantages:
Compact structure with minimal footprint, ideal for factories with limited space
Modern and clean appearance, suitable for automated production lines
Designed specifically for coil laser flexible cutting machine applications
Machine Bed Structure:
Dual integrated welding bed design
Entire bed welded as one piece and stress-annealed
Manufacturing process:
Welding → Stress annealing → Rough machining → Finishing machining
Effectively eliminates internal stress and ensures long-term stability
Key Benefits:
Excellent vibration resistance during high-speed cutting
Long-term precision retention
Ideal for continuous operation of coil fed laser cutting machines

Continuous coil feeding for higher productivity
Reduced material waste and lower processing cost
Less manual handling, improved safety
High flatness accuracy for better cutting quality
Flexible thickness range (1–6mm coil sheet metal)
Compatible with 3000W / 6000W / 12000W fiber laser sources
Compact footprint suitable for modern factories
Long-term machine stability and precision

A coil sheet metal laser cutting machine is no longer just an option—it is a strategic upgrade for manufacturers pursuing automation, efficiency, and cost control.
With a robust loading trolley, high-precision decoiler, advanced leveling system, and stable fiber laser cutting unit, the coil fed laser cutting machine provides a complete and reliable solution for modern coil processing.
If you are looking for a coil laser cutting machine or coil laser flexible cutting machine for high-volume sheet metal production, this system is the ideal choice for long-term competitiveness and stable output.
This is the first one.